Porzione di bifamiliare in vendita

Cava Manara, Via Leonardo da Vinci - Mezzana Corti
€ 235.000
3 locali 3 locali
171 Mq 171 Mq
3 bagni 3 bagni

Porzione di bifamiliare in vendita

Cava Manara, Via Leonardo da Vinci - Mezzana Corti

Descrizione annuncio

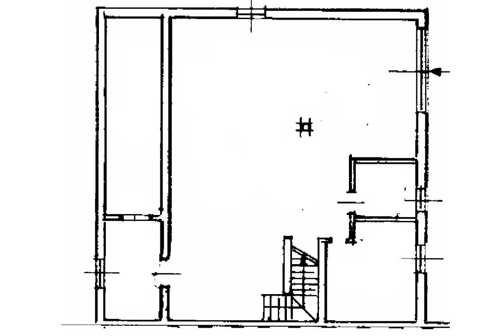
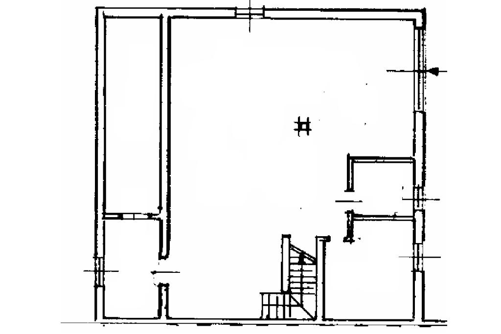
Cava Manara fraz. Mezzana Corti, Via Leonardo Da Vinci - Proponiamo, in un tranquillo contesto residenziale, una porzione di villa bifamiliare edificata negli anni ’90 e sviluppata interamente su un unico livello. La proprietà è avvolta da un ampio giardino privato che garantisce privacy e comfort. Una scenografica scalinata conduce al grande portico, perfetto per pranzi e cene all’aria aperta in totale serenità. L’ingresso si apre su un soggiorno luminoso e accogliente, impreziosito da un elegante camino a legna. La zona giorno comprende inoltre una cucina ampia e funzionale, completata da un comodo ripostiglio ideale come dispensa. Un disimpegno introduce alla zona notte, composta da una spaziosa camera matrimoniale, un bagno principale dotato sia di vasca sia di doccia, un secondo bagno di servizio, una camera singola e un balcone che percorre l’intera facciata dell’immobile. Tramite la scala interna si accede al generoso box, utilizzabile anche come deposito, dove sono presenti un ulteriore bagno di servizio, una pratica cantina e il locale tecnico. La casa è dotata di infissi in legno con doppio vetro, impianto di aria condizionata e pavimentazione in ceramica firmata Laura Biagiotti. Una soluzione ideale per chi desidera vivere in un ambiente riservato, con spazi interni confortevoli e un ampio giardino dove godere appieno della tranquillità.

Hai una casa simile in questa zona?

Molti dei nostri clienti stanno cercando soluzioni indipendenti con spazi esterni a Cava Manara e nelle zone limitrofe.
Se stai pensando di vendere oppure vuoi semplicemente conoscere il valore attuale del tuo immobile, contattaci per una valutazione gratuita e senza impegno.

Potresti avere già un potenziale acquirente interessato.

Mostra tutto

Nelle vicinanze

Trasporto pubblico Trasporto pubblico
San Martino Siccomario-Cava Manara
San Martino Siccomario-Cava Manara
2,4 Km
Mezzana Corti BARSANTI civ.59
Mezzana Corti BARSANTI civ.59
90 m
Mezzana Corti BARSANTI Scuole
Mezzana Corti BARSANTI Scuole
100 m
Ricariche auto elettriche Ricariche auto elettriche
D Piú Discount
1,3 Km
Scuole Scuole
Scuole
90 m
Supermercati Supermercati
MD
2,1 Km
Negozi Negozi
OVS
800 m
Bimbo Store
820 m
Orme Centro Moda
1,4 Km
Mostra tutto

Caratteristiche

Rif.:
61153061
Piano:
1 di 1 (Piano terra)
Box:
2
Balconi:
1
Camere da letto:
2
Arredamento:
Assente
Mostra tutto
Prezzo Prezzo
€ 235.000
Rata mutuo Rata mutuo
€ 1.121 / mese
Spese annue Spese annue
€ 0
Proponi il tuo prezzoProponi il tuo prezzo

Classe Energetica

E
E
E
E
E
E
E
E
E
EP globale non rinnovabile:
247.82 kW h/m² anno
EP globale rinnovabile:
1.03 kW h/m² anno
EP invernale del fabbricato:
EP estiva del fabbricato:
Anno di costruzione:
1990
Riscaldamento:
Autonomo
Tipo impianto:
A radiatori
Tipo alimentazione:
Metano

Ti interessa visionare l'immobile?

Fissa un appuntamento  Fissa un appuntamento

Richiedi informazioni

Clicca su Leggi per aprire l'informativa
* Questi campi sono obbligatori

Calcola il tuo mutuo

Semplice e senza impegno
Anticipo

( % )
Mutuo

( % )

pochi semplici passi

inserisci i tuoi dati
Questionario completato
Grazie per aver richiesto un appuntamento senza impegno con un nostro Consulente del Credito e Assicurativo.

Hai inserito correttamente tutti i dati necessari e a breve riceverai una e-mail con un link da convalidare per inviare i tuoi dati.
Affiliato
Tudor Immobiliare D.I.
Via Gabba, 13 27028 San Martino Siccomario (PV)

Il nostro staff


  • Claudiu Constantin Tudor
    Affiliato
Via Gabba, 13 27028 San Martino Siccomario (PV)
Zona: San Martino Siccomario-Travacò Siccomario-Carbonara al Ticino
Mostra su mappa
Orari: Dal Lunedì al Venerdì dalle ore 9.00 alle ore 12.30 e dalle ore 15.00 alle ore 19.30; Sabato dalle ore 9.00 alle ore 12.30
Affiliato
Tudor Immobiliare D.I.
Via Gabba, 13 27028 San Martino Siccomario (PV)

2026 Tecnocasa Franchising S.p.A. - P. IVA 08365160152 - Via Monte Bianco 60/A 20089 Rozzano (MI). Ogni agenzia ha un proprio titolare ed è autonoma. Privacy policy | Policy utilizzo | Cookie policy