Casa semindipendente in vendita

Mezzana Rabattone, Via Guglielmo Marconi
€ 77.000
4 locali 4 locali
191 Mq 191 Mq
2 bagni 2 bagni

Casa semindipendente in vendita

Mezzana Rabattone, Via Guglielmo Marconi

Descrizione annuncio

Mezzana Rabattone, Via Marconi - In tranquillo contesto residenziale proponiamo in vendita un’ampia porzione di cascina disposta su due livelli, con giardino di proprietà.

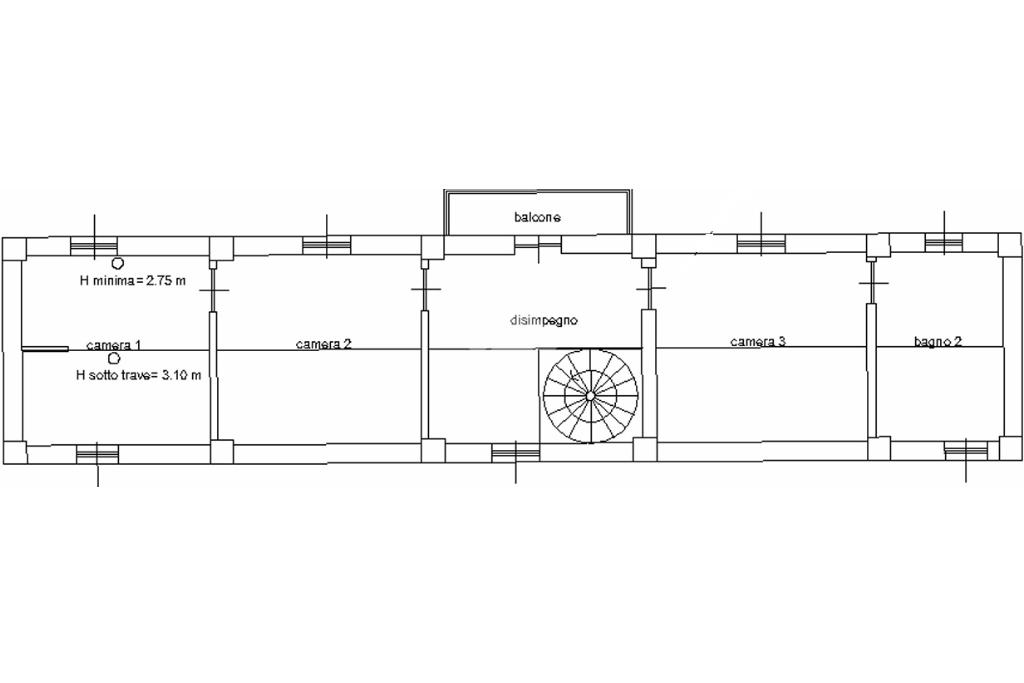
L’immobile si apre direttamente sull’ampio giardino privato, impreziosito da due portici coperti, perfetti per pranzi e cene all’aperto durante la bella stagione, e da una piscina attualmente in disuso, con la possibilità di essere ripristinata. La proprietà dispone di doppi ingressi, sia dal lato strada che dal giardino. Al piano terra si trovano un ampio soggiorno al grezzo, facilmente personalizzabile secondo le proprie esigenze, una spaziosa cucina abitabile, un bagno di servizio e un comodo ripostiglio, anch’essi da ultimare. Una scala a chiocciola in muratura conduce al piano primo, dove si sviluppa la zona notte composta da tre camere passanti, un bagno con doccia e un balcone con affaccio su una tranquilla strada a fondo chiuso.

Questa soluzione rappresenta la scelta ideale per chi desidera vivere in un ambiente riservato e sereno, senza rinunciare alla comodità dei servizi e alla vicinanza alla città. Pavia è infatti raggiungibile in soli dieci minuti d’auto.

Mostra tutto

Caratteristiche

Rif.:
61122459
Piano:
1 di 2 (Piano su più livelli)
Posti auto:
1
Balconi:
1
Camere da letto:
3
Arredamento:
Assente
Mostra tutto
Prezzo Prezzo
€ 77.000
Rata mutuo Rata mutuo
€ 367 / mese
Spese annue Spese annue
€ 0
Proponi il tuo prezzoProponi il tuo prezzo

Classe Energetica

F
F
F
F
F
F
F
F
F
EP globale non rinnovabile:
256.60 kW h/m² anno
EP globale rinnovabile:
0.49 kW h/m² anno
EP invernale del fabbricato:
EP estiva del fabbricato:
Anno di costruzione:
1967
Riscaldamento:
Assente

Ti interessa visionare l'immobile?

Fissa un appuntamento  Fissa un appuntamento

Richiedi informazioni

Clicca su Leggi per aprire l'informativa
* Questi campi sono obbligatori

Calcola il tuo mutuo

Semplice e senza impegno
Anticipo

( % )
Mutuo

( % )

pochi semplici passi

inserisci i tuoi dati
Questionario completato
Grazie per aver richiesto un appuntamento senza impegno con un nostro Consulente del Credito e Assicurativo.

Hai inserito correttamente tutti i dati necessari e a breve riceverai una e-mail con un link da convalidare per inviare i tuoi dati.
Affiliato
Tudor Immobiliare D.I.
Via Gabba, 13 27028 San Martino Siccomario (PV)

Il nostro staff


  • Claudiu Constantin Tudor
    Affiliato
Via Gabba, 13 27028 San Martino Siccomario (PV)
Zona: San Martino Siccomario-Travacò Siccomario-Carbonara al Ticino
Mostra su mappa
Orari: Dal Lunedì al Venerdì dalle ore 9.00 alle ore 12.30 e dalle ore 15.00 alle ore 19.30; Sabato dalle ore 9.00 alle ore 12.30
Affiliato
Tudor Immobiliare D.I.
Via Gabba, 13 27028 San Martino Siccomario (PV)

2026 Tecnocasa Franchising S.p.A. - P. IVA 08365160152 - Via Monte Bianco 60/A 20089 Rozzano (MI). Ogni agenzia ha un proprio titolare ed è autonoma. Privacy policy | Policy utilizzo | Cookie policy